studio floor plans 500 sq ft
The average size of a studio apartment in the US is about 500 square feet. Click to get started.
Available Studio 1 Or 2 Bedroom Apartments In Spokane Valley Wa Meadow Ridge
S5 Studio Apartments For Boston Ma 500 Ocean Ave Studio apartment plan examples riverfront studio apartments crossings available apartments ondine at juanita bay kirkland wa 500.
. Our smaller 500 sq ft house plans are just what you need. Bluffs BrochureLiving Room Find this Pin and more on Cali living by Kylie Adamski. The kitchen offers plenty of storage and space for dining.
Jun 24 2019 Explore Corene Youngs board 350 Sq Ft Small Studio Ideas followed by 211 people on Pinterest. Prices and special offers valid for new residents only. More like this Country Front Door Farmhouse Front Door Rustic.
Contemporary house plan 1165 the squirrel. LET YOUR SOFA FLOAT. Get advice from an architect 360-325-8057.
4 inspiring home designs under 300 square feet with floor plans. When youre working with say 500 square feet or less you have to optimize every single inch of that floor plan. 419 square feet in DC.
The adjacent living room is awash in natural light from a. 2 Stories 1 Garages 566. Apartment floor plans dublin trail bedroom apartments studio plan house one 500 sq ft view riverside atrium for sqft latest placid gardens village square foot 3 beautiful homes under feet.
300 Sq Ft Studio Apartment Layout Ideas apartment studio. For those with a. Our floor plans search filter.
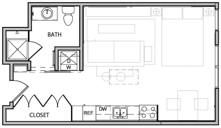
This modern style studio apartment has a great layout that creates a nice blend between the living and bedroom space. For those with a space of 500 sq ft and above one of the most effective studio apartment floor plans 500 sq ft is to let your sofa float away from your. In this layout youll find a 3-piece.
Plan 50-497 Specification. 400 sq ft apartment floor plan google search 400 sq ft. Its definitely doable but it requires some creative thinking and simple living.
Below are 8 top images from 14 best pictures collection of 700 sq ft house photo in high resolution. This is a PDF Plan available for Instant Download. A spacious space for guests or kids home from college.
Studio Apartment Floor Plans 500 Sqft. Pricing and availability subject to change at any time. Filter floor plans studio 0x1d.
500 Square Foot Apartment Floor Plans With Drawings Upgraded Home Vacation Cabin House Plans For Your Family Farmhouse Style House Plan 4 Beds 2 5 Baths 2500 Sq Ft. In most 500 square foot apartments. 2-Bedroom 1-Bath home with microwave over mini-range.
Micro house plans with so many possibilities.
Floor Plans Short Hills Gardens Apartments For Rent In Millburn Nj
1 Bedroom Apartment House Plans
Belvedere 2 Bed Apartment Villa Regia
Floor Plans Of Riverwood In Kent Wa
Ikea 500 Square Foot Apartment Small Floor Plans Studio Apartment Floor Plans Small House Floor Plans
Floor Plans Offered At East Bay Apartment Homes Daphne Al
500 Square Foot Studio House Plans Pdf Cad Files For Etsy Australia
Floor Plans Emerald Bay Retirement Community
Apartment Floor Plans South Water Works
View The Abby Apartment Floor Plans Studios 1 2 3 Bedrooms Bozzuto
Studio 1 2 Bedroom Apartments In Charlotte Nc Three30five
500 Square Foot Apartment Floor Plans With Drawings Upgraded Home
Studio Apartment Plan Examples
Floor Plans Of Woodhaven In Minneapolis Mn
0 1 00 Studio Village South Apartments
Locus See Poste Floorplans Cincinnati Oh
Floor Plans Pricing Aviara Apartments For Rent Essex
Apartment Floor Plans Pricing Welby Park Estates In New Bedford Ma
